dom HIT
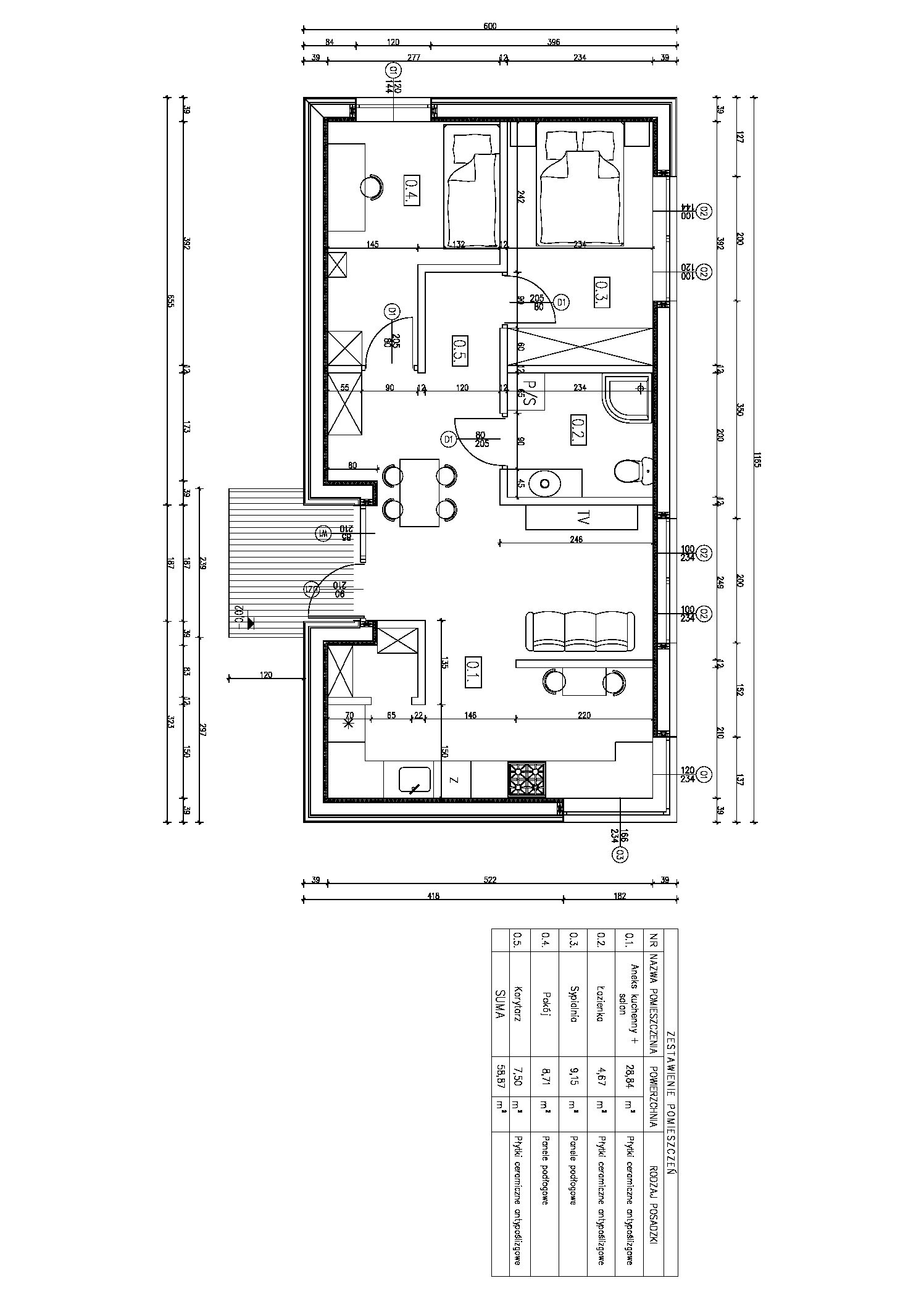
Nasza najnowsza oferta to dom o powierzchni 11,65 na 6 m ( 69,90m2) nie wymagający pozwolenia na budowę, wystarczy zgłoszenie.
Dom idealny dla 3 osobowej rodziny montowany na płycie fundamentowej.
Ogrzewanie podłogowe i ccw zasilane pompą ciepła.
Nasze Domy prefabrykowane:
- Czym jest prefabrykowana konstrukcja szkieletowa?
- Jakie są zalety prefabrykowanej konstrukcji szkieletowej?
Proces powstawania domu z prefabrykatów. Prefabrykacja konstrukcji szkieletowej.
Produkcja konstrukcji domów z prefabrykatów odbywa się w wyspecjalizowanych zakładach produkcyjnych. Gotowe elementy ścian, stropu i dachu powstają w formie modułów. Takie rozwiązanie pozwala na utrzymanie wysokiej jakości wykonania całości konstrukcji. Proces produkcji poszczególnych modułów jest ściśle kontrolowany na wszystkich etapach, natomiast utrzymanie stałych warunków hali produkcyjnej daje gwarancję najwyższej jakości produktu.
Zastosowanie takiej technologii budowy domu pozwala na skrócenie terminu realizacji budowy, możliwość zastosowania racjonalnych rozwiązań ekonomicznych i dostosowanie rozwiązań materiałowych oraz konstrukcyjnych do preferencji inwestora lub wymagań projektu budowlanego.
Ogrzewanie:
Ogrzewanie podłogowe w całym budynku wraz z ciepłą wodą użytkową zasilane zestawem z pompą ciepła MAGIS PRO 4 V2 M200 B50
- Kompletny system dedykowany dla budynków nowych i modernizowanych.
- Grzałka elektryczna montowana w buforze pozwala na pokrycie niedoborów mocy pompy ciepła w przypadku ekstremalnie niskich temperatur powietrza zewnętrznego.
- Zasobnik serii OKC NTR/HP z grzałką elektryczną 2,5 kW pozwala na zapewnienie komfortu c.w.u. Seria zasobników charakteryzuje się wężownicą o zwiększonej powierzchni wymiany ciepła co przekłada się na efektywniejszą wydajność działania całego układu w trybie przygotowania c.w.u.
- Bufor ciepła serii NAD V1 w komplecie powiększa pojemność instalacji hydraulicznej budynku, magazynując energię konieczną do odszraniania parownika pompy ciepła. Bufor ciepła zapewnia prawidłową pracę układu. Możliwość wykorzystania bufora jako sprzęgła hydraulicznego, przystosowany jest do montażu na ścianie lub podłodze.
- Filtr magnetyczny „CleanWater” chroni instalację centralnego ogrzewania przed osadami i zanieczyszczeniami oraz wydłuża żywotność wymiennika pompy ciepła.
- Możliwość bezpłatnego przedłużenia ochrony gwarancyjnej na pompę ciepła nawet do 5 lat. Zasobnik i bufor objęte są 5-letnią ochroną gwarancyjną.
SKŁAD ZESTAWU:
- Pompa ciepła MAGIS PRO 4 V2
- TJ 6/4″- 3,3 kW, zasilanie 400 V – grzałka umieszczana w buforze na cele CO
- Sonda NTC zasobnika
- Zasobnik do pomp ciepła OKC 200 NTR/HP
- Naczynie przeponowe c.w.u. 24 l
- Zbiornik buforowy – NAD 50 V1
- Grzałka TJ 6/4″- 2,5 kW, zasilanie 230 V – na cele c. w. u.
- Filtr magnetyczny CleanWater z zaworami odcinającymi GW 1″
- Zestaw ochrony antyzamrożeniowej – do jednostki zewnętrznej
Wyposażenie:
- Budynek wykończony w tzw. Stanie deweloperskim
- Bez białego montażu i płytek.
- Okna minimum U 06
- Łazienka posiada zamontowany stelaż GEBERIT
- Instalacja elektryczna 3 fazowa zgodna z preferencjami zamawiającego
Prefabrykaty
Gotowe elementy konstrukcyjne
Produkcja konstrukcji domów z prefabrykatów odbywa się w wyspecjalizowanych zakładach produkcyjnych. Gotowe elementy ścian, stropu i dachu powstają w formie modułów. Takie rozwiązanie pozwala na utrzymanie wysokiej jakości wykonania całości konstrukcji. Proces produkcji poszczególnych modułów jest ściśle kontrolowany na wszystkich etapach, natomiast utrzymanie stałych warunków hali produkcyjnej daje gwarancję najwyższej jakości produktu.
Zastosowanie takiej technologii budowy domu pozwala na skrócenie terminu realizacji budowy, możliwość zastosowania racjonalnych rozwiązań ekonomicznych i dostosowanie rozwiązań materiałowych oraz konstrukcyjnych do preferencji inwestora lub wymagań projektu budowlanego.
Domy modułowe
Opis
Oferujemy Państwu do sprzedaży domy modułowe na terenie województwa świętokrzyskiego oraz częściowo województwa mazowieckiego: powiaty radomski, szydłowiecki i lipski.
Jak powstają domy modułowe?
Gotowe elementy ścian, stropu i dachu powstają w formie modułów. Produkcja konstrukcji domów z prefabrykatów odbywa się w wyspecjalizowanych zakładach produkcyjnych. Takie rozwiązanie pozwala na utrzymanie wysokiej jakości wykonania całości konstrukcji. Proces produkcji poszczególnych modułów jest ściśle kontrolowany na wszystkich etapach, natomiast utrzymanie stałych warunków hali produkcyjnej daje gwarancję najwyższej jakości produktu.
Nasza oferta:
Dom montowany jest z gotowych elementów i montowany na płycie fundamentowej. Zastosowanie takiej technologii budowy domu pozwala na skrócenie terminu realizacji budowy, możliwość zastosowania racjonalnych rozwiązań ekonomicznych i dostosowanie rozwiązań materiałowych oraz konstrukcyjnych do preferencji inwestora lub wymagań projektu budowlanego. Możliwość aranżacji – montaż ścian wewnątrz budynku zgodnie z preferencjami zamawiającego.
Budynek wykończony w stanie deweloperskim, bez białego montażu i płytek.
W zakresie prac Wykonawcy m.in.:
montaż okien i drzwi wejściowych,
wykonanie kompletnej instalacji elektrycznej budynku,
prace dotyczące wykonania instalacji wodno-kanalizacyjnej,
CO kocioł gazowy z zasobnikiem – pompa ciepła jest z opcja dodatkowej wyceny.
Przyłącza po stronie Inwestora.
Wykonanie płyty jest po stronie Inwestora z możliwością wykonania po wycenie przez wykonawcę.
Koordynujemy działania związane z budową przyłączy oraz budową płyty jak również organizujemy wykonawców po konsultacjach cenowych z inwestorem
Oferujemy również wykończenie wewnętrzne pod klucz łącznie z zabudowami meblowymi
Do wyboru trzy projekty domów:
Dom w majówkach – powierzchnia użytkowa 68,37m2
Projekt domu Umbra – powierzchnia użytkowa 88,58m2
Projekt domu Awokado – powierzchnia użytkowa 99,93m2
Czas realizacji, czyli przygotowanie – produkcja elementów 3 miesiące i 2 tygodnie na montaż u Klienta, po wykonaniu przez Klienta przyłączy i wylaniu płyty fundamentowej.
Cena w ogłoszeniu dotyczy wykonania domu o powierzchni użytkowej 68,37m, pozostałe projekty do wyceny indywidualnej. W cenie jeden z trzech wybranych projektów.
Możliwość wykonania budynku o innych parametrach.
































